- Woonoppervlakte
- Circa 233 m²
- Perceeloppervlakte
- Circa 1720 m²
- Bouwjaar
- Gebouwd in 1962
- Aantal kamers
- 10 kamers (8 slaapkamers)
Welkom aan de Marialaan 113 in Reusel, een unieke kans voor wie ruimte en mogelijkheden zoekt! Deze vrijstaande semi-bungalow ligt op een schitterend perceel van maar liefst 1700 m² en biedt een scala aan opties: van het realiseren van je droomwoning tot een veelbelovend ontwikkelproject.
Belangrijkste kenmerken:
- Vrijstaande semi-bungalow: Een solide basis met alle voorzieningen op de begane grond, perfect om naar eigen smaak te moderniseren en in te richten.
- Ruim perceel: Met 1700 m² is er volop ruimte voor een prachtige tuin, extra bebouwing of andere creatieve plannen.
- Ontwikkelingsmogelijkheid: Er is al overleg geweest met de gemeente en ambtelijk gezien is woningbouwontwikkeling voorstelbaar. Dat maakt dit perceel ook interessant voor investeerders en projectontwikkelaars. Een concreet plan dient hier nog voor gemaakt te worden en in een later stadium zal er dan een principe verzoek ingediend te worden.
- Rustige locatie: Gelegen in een groene en rustige omgeving, met het dorpscentrum en voorzieningen op korte afstand.
Voor wie is dit een buitenkans?
- Liefhebbers van ruimte en rust: Creëer je eigen paleisje op deze royale locatie.
- Projectontwikkelaars en investeerders: Zet jouw visie om in een kleinschalig woonproject in een geliefde omgeving.
- Gezinnen en stellen: Geniet van de vrijheid en mogelijkheden die een perceel van deze omvang te bieden heeft.
De Marialaan 113 biedt eindeloze kansen, of je nu kiest voor moderniseren en bewonen, of voor ontwikkelen en nieuw bouwen.
Grijp deze unieke mogelijkheid en plan een bezichtiging om de potentie van dit pand en perceel zelf te ervaren!
Overdracht
- Vraagprijs
- € 900.000 k.k.
- Status
- Verkocht
- Aanvaarding
- In overleg
Bouw
- Object type
- Landhuis, vrijstaande woning
- Soort bouw
- Bestaande bouw
- Bouwjaar
- 1962
- Soort dak
- Zadeldak bedekt met pannen
Oppervlakte en inhoud
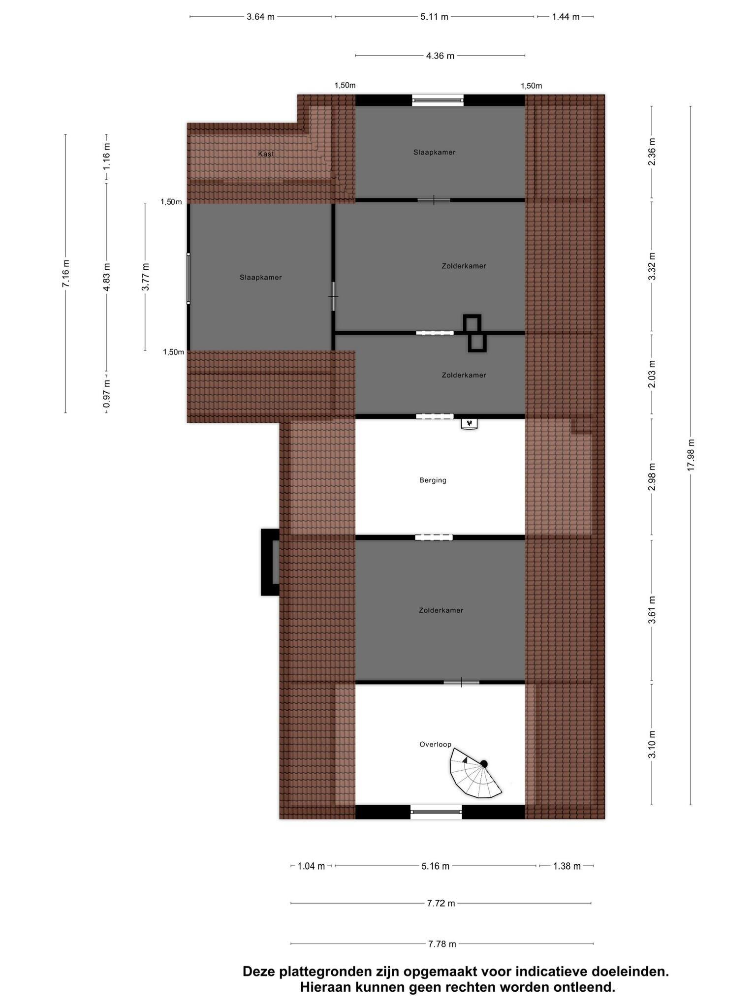
- Woonoppervlakte
- 233 m²
- Perceeloppervlakte
- 1720 m²
- Inhoud
- 974 m³
- Overige inpandige ruimte
- 30 m²
- Externe bergruimte
- 8 m²
- Gebouwgeb. buitenruimte
- 3 m²
Indeling
- Aantal kamers
- 10 kamers (8 slaapkamers)
- Aantal badkamers
- 1 badkamer
- Badkamervoorzieningen
- Douche, wastafelmeubel
- Aantal woonlagen
- 2 woonlagen
- Voorzieningen
- Mechanische ventilatie, tv-kabel
Energie
- Energielabel
- F
- Energielabel registratie
- 19-11-2024
- Isolatie
- Gedeeltelijk dubbel glas
- Verwarming
- Cv-ketel
- Warm water
- Cv-ketel
- Cv ketel
- Intergas combiketel gas gestookt uit 2022 (eigendom)
Buitenruimte
- Ligging
- Aan rustige weg, in woonwijk, beschutte ligging
- Tuin
- Tuin rondom
- ligging tuin
- En bereikbaar via achterom
Bergruimte
- Schuur / berging
- Aangebouwd steen
Garage
- Soort garage
- Inpandig
- Capaciteit
- 1 auto
- Voorzieningen
- Elektra, elektrische deur
Parkeergelegenheid
- Soort parkeergelegenheid
- Op eigen terrein
Energieverbruik in Reusel
Energielabel deze woning
Energielabel F
Publicatie energielabel: 19-11-2024
Stroomverbruik per jaar
(Gemiddelde vrijstaande woning in Reusel)
Gasverbruik per jaar
(Gemiddelde vrijstaande woning in Reusel)
* Cijfers zijn afkomstig van het CBS en bedoeld als indicatie en kunnen verschillen voor deze woning
Indicatie hypotheeklasten
Eigen inleg:
Spaargeld / overwaarde
Rente:
Laagste 10-jaars rente
Laagste 10-jaars rente
2,74% - Centraal Beheer Groen... - NHG
3,05% - Centraal Beheer Groen... - 80%
Laagste 20-jaars rente
3,19% - Centraal Beheer Groen... - NHG
3,31% - Centraal Beheer Groen... - 80%
Laagste 30-jaars rente
3,34% - Centraal Beheer Groen... - NHG
3,47% - Centraal Beheer Groen... - 80%
Hypotheek:
Bruto maandlasten: € 0 p/m
Netto maandlasten: € 0 p/m
Hoe berekenen we dit?
Het rentepercentage is gebaseerd op de laagste 10-jaars vaste rente voor één hypotheekdeel. De vermelde rente (3.05% zonder NHG) is gecontroleerd op 23-04-2025. Deze berekening is gebaseerd op een annuïteitenhypotheek die volledig wordt afgelost, waarbij de maandlasten gedurende de gehele looptijd gelijk blijven. De werkelijke rente en netto maandlasten kunnen variëren, afhankelijk van uw persoonlijke situatie en de hypotheekverstrekker. Raadpleeg een financieel adviseur voor een nauwkeurige berekening en advies. Aan deze berekening kunnen geen rechten worden ontleend; het dient enkel als indicatie.
Documentatie
Kadastrale kaart
Leefomgeving
Kadaster
Plattegronden PDF
BAG uittreksel
Brochure
WOZ waarderapport
3D Plattegronden
Bekijk onze website
Bezichtiging
Bod uitbrengen
Waardebepaling
Zoekopdracht
Alles downloaden
Zonnegrenzen bekijken
Op de kaart
Inwoners in Reusel
Cijfers voor postcodegebied 5541
- Totaal aantal inwoners
- 8705 inwoners
- Mannen
- 51%
- Vrouwen
- 49%
Inwoners in Reusel
Cijfers voor postcodegebied 5541
- tot 15 jaar
- 17%
- 15 tot 25 jaar
- 10%
- 25 tot 35 jaar
- 25%
- 45 tot 65 jaar
- 27%
- 65 en ouder
- 21%
Huishoudens in Reusel
Cijfers voor postcodegebied 5541
- Eenpersoons zonder kinderen
- 29%
- Meerpersoons zonder kinderen
- 34%
- Huishoudens zonder kinderen
- 63%
Huishoudens in Reusel
Cijfers voor postcodegebied 5541
- Huishoudens met één kind
- 5%
- Huishoudens met meerdere kinderen
- 31%
- Huishoudens met kinderen
- 36%
Woningen in Reusel
Cijfers voor postcodegebied 5541
- Woningen voor 1945
- 7%
- Woningen tussen 1945 en 1965
- 15%
- Woningen tussen 1965 en 1975
- 17%
- Woningen tussen 1975 en 1985
- 17%
- Woningen tussen 1985 en 1995
- 16%
Woningen in Reusel
Cijfers voor postcodegebied 5541
- Woningen tussen 1995 en 2005
- 10%
- Woningen tussen 2005 en 2015
- 13%
- Woningen na 2015
- 4%
- Huurwoningen
- 20%
- Koopwoningen
- 80%
Overige in Reusel
Cijfers voor postcodegebied 5541
- Gemiddelde WOZ waarde
- € 287.000,-
- Personen onder de 65 met uitkering
- 5%
Overige in Reusel
Cijfers voor postcodegebied 5541
- Adressen per km²
- 783
- Stedelijkheid (schaal 1 op 5)
- 40%
Korte feiten over Reusel
Reusel (Brabants: Reuzel) is de hoofdplaats van de gemeente Reusel-De Mierden, in de Nederlandse provincie Noord-Brabant. Reusel is gelegen in regio de Kempen. Dichtstbijzijnde grote steden zijn Turnhout, Tilburg en Eindhoven. Reusel is een van de Acht zaligheden.
Ben Straatman Makelaardij
Indien u vragen heeft of u wilt een bezichtiging inplannen, dan kunt u gebruik maken van het formulier hiernaast. Er zal daarna op korte termijn contact met u worden opgenomen.
Contact opnemen
Ben Straatman Makelaardij
Welkom bij Ben Straatman Makelaardij, een eigentijds Kempisch makelaarskantoor. Of je nu op zoek bent naar een makelaar om je woning te verkopen, je droomhuis gevonden hebt, of hulp nodig hebt bij gedeeltelijke zelf-facilitatie van de aankoop of verkoop, bij ons ben je aan het juiste adres. Wij bieden de professionele ondersteuning en zekerheid die je zoekt.
Mijn naam is Ben Straatman, oprichter van Ben Straatman Makelaardij. Geboren in Eindhoven en sinds mijn zevende woonachtig in Reusel - een echte Kempenaar dus. Getrouwd met Sanne en trotse vader van vier kinderen (Neel, Mette, Vik en Nand), woon ik met mijn gezin in het prachtige buitengebied van Reusel. Naast mijn werk als gedreven makelaar, ben ik graag thuis bij mijn gezin, sport ik wanneer het kan, luister ik naar muziek en geniet van ons gezinsleven.
Wil je meer weten over wat wij voor je kunnen betekenen? Ik kom graag langs om de mogelijkheden te bespreken, of nodig je uit voor een kop koffie op ons kantoor.
Nieuwste reviews
-
Aangelag 52
Super fijne makelaar, Ben toont veel empathieIk zou een ieder adviseren om in gesprek te gaan met Ben StraatmanMartien
-
Lindestraat 18
Ben heeft ons steeds goed geadviseerd en ook tijd voor ons gemaakt toen de verkoop van ons huis enige tijd duurde, en wij hier veel stress v...
-
Hoofdstraat 74 A
Ben is een goede makelaar met kennis van de markt. Geen poeha, een kempische mentaliteit met door pakken.